Детальный инжиниринг — ключевой этап проектирования для запуска современного производства
Детальный инжиниринг — это этап проектирования, на котором создаётся полный комплект технической документации для будущего производства. Если на стадии базового инжиниринга формируется концепция, то детальный инжиниринг переводит эту концепцию в конкретные рабочие чертежи и инструкции, по которым можно реально строить и запускать производство.
Когда предприятие принимает решение о модернизации, важно доверить её профессионалам. Ошибочно полагать, что достаточно лишь заменить станки — без изменения технологий и комплексного подхода результат будет минимальным.
Внутренние службы предприятия не способны реализовать это в полном объёме. Поэтому оптимальный вариант — обратиться к надёжной компании с опытом разработки комплексных проектов.
Компания Crossline специализируется на детальном инжиниринге, обеспечивая снижение производственных затрат и повышение точности обработки. Наши решения превращают концепции в рабочие проекты с гарантированной реализуемостью.
Детальный инжиниринг включает в себя:
- Разработку конструкторской документации: создание точных чертежей и 3D-моделей цехов, линий, узлов;
- Подготовку спецификаций оборудования и инструмента: определение параметров станков, прессового и термического оборудования, транспортных систем (при необходимости). Подбор оснастки, режущего и вспомогательного инструмента.
- Детализацию технологических процессов. Создание управляющих программ для станков с ЧПУ и автоматизированных линий.
- Разработку документации для монтажа и пусконаладки: инструкции по установке оборудования. Подготовка линии к вводу в эксплуатацию.
- Разработку эксплуатационных инструкций: руководства для операторов и обслуживающего персонала.
- Приёмочные испытания и запуск линии. Проверка точности работы оборудования, CNC-программ и автоматизированных систем. Контроль соответствия готовой линии проектной документации. Сдача заказчику деталей-представителей, согласно требованию чертежа.
Пример детального инжиниринга — создание мощностей по производству дисков колёс для тракторов «Беларус».
Согласно техническому заданию заказчика, проект предусматривал выпуск 31 наименования деталей с общей годовой программой 448 290 единиц. Для этого оборудование должно работать в трёхсменном режиме при годовом фонде времени 5659 часов и коэффициенте загрузки 0,85.

Основные цели проекта:
- Увеличение производительности и снижения трудоёмкости обработки при минимальной себестоимости дисков колёс;
- Обеспечение требуемой точности обработки и стабильного качества деталей;
- Сокращение сроков и минимизации объёмов подготовки при изменении конструкции деталей за счёт гибкости оборудования и оснастки;
- Повышение уровня автоматизации производства;
- Снижение численности рабочего персонала;
- Экономия топливно-энергетических ресурсов.

Этапы детального инжиниринга
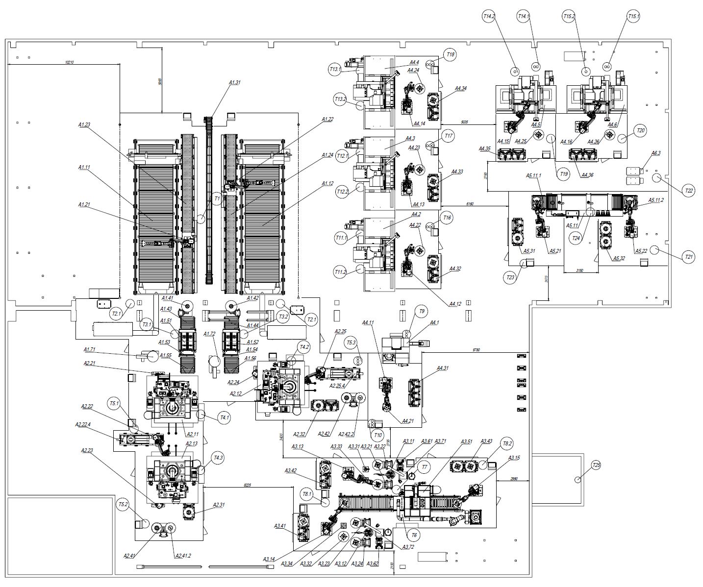
На этапе разработки конструкторской документации были созданы точные чертежи, спецификации и 3D-модели деталей и производственного оборудования.

Наши специалисты составили спецификации на оборудование с параметрами термического и прессового оборудования, станков и станций загрузки. Подобрано оборудование для оптимальной производительности и минимизации простоев.

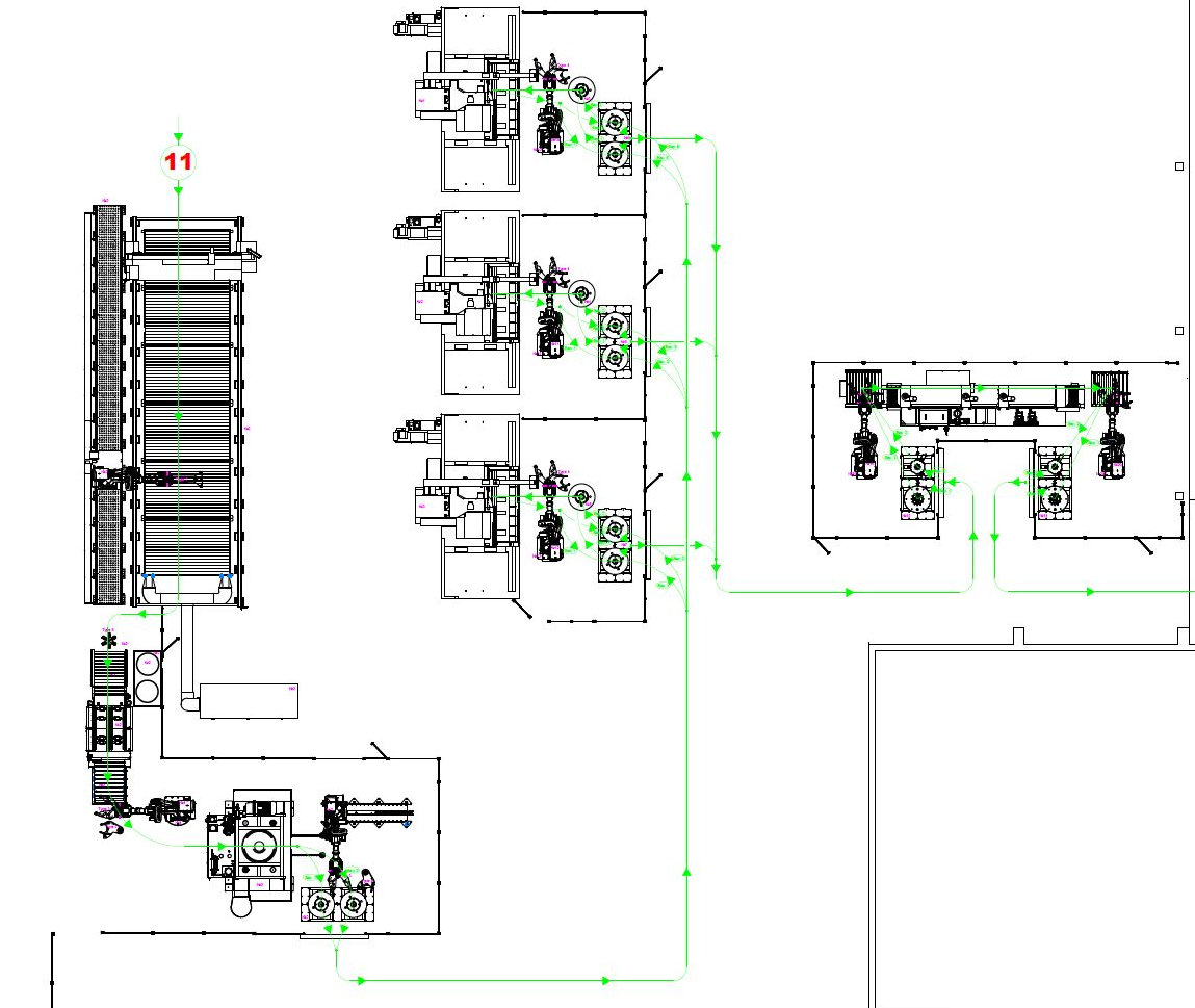
В ходе технологической проработки была определена оптимальная технология изготовления деталей.
Комплексы обработки включают резку, штамповку, сварку, мехобработку и мойку. Роботы-транспортеры перемещают заготовки между операциями, используя маршруты, заложенные в программной документации.
Уточнен расчёт производственных потоков и внутрицеховой логистики, включая определение оптимального маршрута движения заготовок и готовых деталей, а также нагрузок на оборудование с учётом работы в трёхсменном режиме.
С учетом детальной проработки и уточнения расчетов имитационная модель в Tecnomatix Plant Simulation подтвердила соответствие запроектированной линии годовой программе производства.
Окончательное планировочное решение по размещению оборудования в границах существующих производственных площадей было согласовано с заказчиком.
Предусмотрено создание месячного задела деталей для предотвращения остановки сборочного конвейера даже в случае аварий, ремонтов или форс-мажоров.
Создана эксплуатационная документация для обучения персонала и снижения ошибок.
Для монтажа и ввода в эксплуатацию создана подробная документация с инструкциями по установке оборудования на производственной площадке.
Технологическое оснащение
Для проекта подобран высокотехнологичный комплекс оборудования от мировых лидеров: 53 единицы техники, из них 28 роботов.
1. Винтовой компрессор с осушителем встроенным и ресивером сжатого воздуха.
Комплекс резки:
2.Установка плазменной резки,
3. Установка снятия грата,
4. Робот-трек и робот-манипулятор. 
Комплекс штамповки:
5. Н-образный гидравлический пресс,
6. Робот-манипулятор.
Комплекс сварки:
7. Оборудование для дымоудаления,
8. Оборудование для сварки в среде защитных газов,
9. Дробеструйная установка очистки изделий,
10. Робот дуговой сварки, робот-позиционер двухосевой, робот-манипулятор. 
Комплекс мехобработки:
11. Вертикальный фрезерный обрабатывающий центр,
12. Вертикальный токарный обрабатывающий центр,
13. Робот-манипулятор. 
Комплекс мойки:
14. Установка моечная тоннельная,
15. Робот-манипулятор.
Комплекс транспортировки:
16. Робот мобильный подъемный,
17. Зарядная станция для роботов. 
Детальный инжиниринг — это не просто закупка и установка техники. Это комплексное решение, в котором стратегия предприятия, проектирование, монтаж, обучение и эксплуатация связаны в единую систему.





